北京格拉斯小镇影音室声学处理案例

发表在 私人家庭影院 2021-4-20 13:55 | 来自北京
一、项目基本信息
(一)基本信息
房间尺寸:10.09m×7.15m×3.50m
座位数:9个
房间位置:地下一层
幕布尺寸:269寸弧形幕
音频系统:7.2.4
(二)设计原则
1、总体性原则
声学设计是总体规划中的一个组成部分,应充分符合总体规划提出的要求。同时声学设计还要充分考虑和周围环境的关系,以及与美学设计,结构设计,机电设计的协同配合。
2、科学性原则
严格遵循声学设计规则制定科学的声学指标,同时制定的声学指标必须可以满足后期科学的验收检测要求。
3、舒适性原则
严格按照“以人为本”的思想,充分考虑人的舒适性,包含人的视觉舒适性、听觉舒适性、感觉舒适性。
4、美观性原则
在满足声学要求的前提下,尽量选择美观性强的材料及结构。
5、实用性原则
选择实用性强的声学产品,根据建筑空间组合的特点,选择合理的结构、施工方案、使声学效果更佳、施工更加方便、缩短更期。
6、环保性原则
室内空间所用的所有声学材料必须符合国家环保标准。
7、经济性原则
在满足使用要求及美观要求的前提下,尽可能降低工程成本。
8、装配式原则
现场施工及产品安装最大程度遵循装配式原则,保证工程顺利、安全、高效完成。
(三)设计依据
1) 《剧场、电影院和多用途厅堂建筑声学设计规范》GB/T 50356-2005;
2) 《民用建筑隔声设计规范》 GB 50118-2010;
3) 《厅堂混响时间测量规范》(GBJ76-84)
4) 《建筑隔声评价标准》(GB/T50121-2005)
5) 《客观评价厅堂语言可懂度的RASTI法》GB/T14476-93;
6) 《声环境质量标准》GB3096-2008
7) 《数字立体声电影院的技术标准》
8) 《小型影院声学设计与认证标准》QB/ZD 01-2013
(四)设计指标
1. 控制声学缺陷
观众厅内无明显的音质缺陷,如回声、颤动回声和声染色等。
2. 背景噪声

较低的背景噪声是听音的前提和基础,只有房间保持安静,才能体验到声轨的每一个细节,音质设计才有意义,否则再好的声音效果都会受到噪声的干扰。以下为不同 NC 曲线对应的人耳的主观感受:
综合考虑:在影院观众厅内空调设备、通风设备、放映设备正常运转的情况下,室内背景噪声值小于35dB或NR30。
3. 隔声指标(空气声隔声量)
良好的隔声意味着:该房间任何时间使用时既不干扰他人,不会受到他人干扰。正常观影时,声级范围约在 85-105dB(A)。因此良好的隔声不仅是对室内背景噪声的保证,也是防止房间使用时对周围敏感房间及环境造成影响。因此,将各项隔声指标规定如下:
墙体 Rw+C≥60dB;
楼板Rw+C≥60dB;
隔声门 Rw+C≥45dB;
4. 混响时间及频率特性
空间用途不同的房间应该有不同的混响时间。由于影院对语言听闻清晰度方面的要求是首要的,所以要求较短的混响时间,以保证语言清晰度,因此混响时间取0.35s(±0.05s)
因为材料的吸声系数是随频率而变化,因此混响时间也随频率而改变。混响时间计算通常采用 125Hz 到 4000Hz 的六个频率。精准地还原声轨录制的音色,需要房间的混响时间频率特性曲线尽可能保持平直,考虑到人耳低频灵明度比高频灵敏度低,同时兼顾吸声处理中高频吸收比低频吸收更容易实现,因此,低频混响时间可略高于中高频。
结论:各频带混响时间范围如下表:
5. 声场不均匀度
良好的声学设计不仅要保证听众能听到,而且在每个座位听到的响度基本一样。因此,我们规定正常放映时,观影区的 100Hz~4000Hz 范围内各频带倍频程声压级最大值与最小值之差不应大于 6dB,最大值与平均值之差不应大于3dB。
(五)声学分析
1. 比例分析
房间原始尺寸:长度为10.09m,宽度为6.96m,高度为3.80m,房间长宽高比例为2.66:1.83:1。
结论:房间比例不在推荐范围内,且矩形房间墙角处极容易产生驻波叠加、简并的现象,造成声染色。因此必须针对低频部分采取强吸声处理措施。
2. 颤动回声
房间平行墙面、地面与顶面之间为平行面,易形成颤动回声。
3. 混响时间分析
原始空间墙体、楼板均为钢筋混凝土,几乎没有任何吸声作用,混响时间长达3秒以上,远高于设计目标0.35秒。
4. 隔音量分析

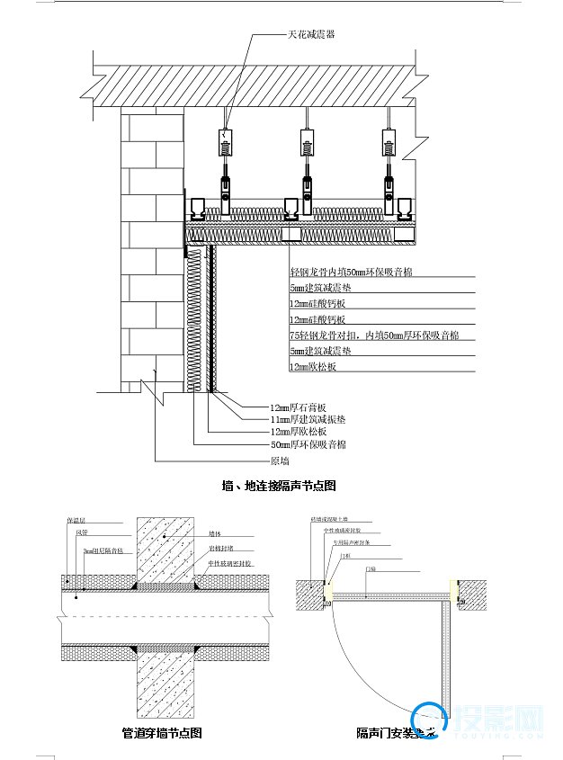
图中红色标注墙体目前尚未砌筑,观影时,影院低音炮低频能量巨大,震感极强,为了防止楼上卧室及相邻敏感空间受到噪声干扰,该房间必须整体做隔音处理,即“房中房”。
门洞是房间的主要漏声环节(蓝色标注部分),普通木门的计权隔音量Rw<15dB,无法满足要求。
(六)解决方案
为保证室内语言清晰度,降低室内混响时间,改善室内音质,消除回声、颤动回声和室内声场不均匀等声学缺陷,控制室内背景噪声,采取以下建声处理措施:
1. 隔声解决方案
为了避免观影时产生的声音影响楼上卧室及周围环境,同时也为了避免外部噪声传到室内,隔声方案为“房中房”,彻底隔绝室内外噪声的相互干扰。
新砌墙体采用双层120mm厚红砖墙,中间预留深度为100mm的空间,计权隔声量Rw>55dB,如下图所示:
门洞处采用“声闸”结构,即一扇专业隔声门,计权隔声量Rw>40dB;加一扇普通装饰门的方案,同时满足隔声跟美观的要求,其综合隔声量高达50dB以上,满足设计要求。如下图所示:
2. 音质解决方案
根据美学设计师的效果图及CAD图纸,我们经过仔细的声学计算,在保证美学效果的前提下,给出如下方案:
发光部分:发光部分采用5mm厚白色亚克力板,后空腔100mm~300mm(依据美学造型),表面透声布饰面,重点吸收80~200Hz的低频能量,解决房间驻波等带来的声音缺陷,同时凹凸不平的造型对中高频声音有很好的扩散效果,为影厅提供很好的包围感,而且保证了美学效果,面积约40㎡。
不发光的部分:不发光的部分采用100mm厚德国进口环保吸音棉填充,透声布饰面,重点吸收500Hz以上的声音,提高厅内的语言清晰度,使各频段声音更加平滑,面积约20㎡。
靠近幕布的两侧墙:靠近幕布的两侧墙,采用聚酯纤维吸音板(材料使用9mm厚聚酯纤维板,面密度2kg/㎡),背后预留50mm空腔的方式安装,这种结构对100~4000Hz都有良好的吸收效果,主要控制来自侧墙的一次反射声,为观众提供更加纯粹、干净的直达声,有更好的观影体验,面积约20㎡。  
天花:根据效果图,影院天花部分采用星空顶(材料使用9mm厚聚酯纤维板,面密度2kg/㎡),即吸音板穿光纤的构造,控制来自天花的一次反射声,面积约40㎡。
后墙:影院后墙采用聚酯纤维吸音板(材料使用9mm厚聚酯纤维板,面密度2kg/㎡)+30mm空腔的方式,防止后墙产生回声,影响观影体验,面积约8㎡。
地面:采用10mm厚吸声地毯。
饰面:饰面必须采用透声布,透声性能需满足100~10000Hz之内各个频带的声音衰减量小于3dB。

二、效果图


三、施工过程图


四、完工效果图


五、完工声场测试







5 个回复
正序浏览
2nsl3    发烧级投影控 发表于 2021-04-21 | 未知
椅子看起来会很舒服的样子
2021-4-21 13:17 回复 收起回复
 楼主 中电声学    VIP达人组 发表于 2021-04-20 | 来自北京

这套家庭影院包含音响、投影、功放、幕布、声学处理等所有费用20余万,想要打造家庭影院根据需求和预算不同,选择的设备不同,3-50万均可。
2021-4-20 15:27 回复 收起回复
 楼主 中电声学    VIP达人组 发表于 2021-04-20 | 来自北京

家庭影院设计是个综合工程,声学处理也很重要
2021-4-20 15:22 回复 收起回复
OLEDDD    大神级投影控 发表于 2021-04-20 | 来自广东
不明觉厉
2021-4-20 15:13 回复 收起回复
陈哥哥    大神级投影控 发表于 2021-04-20 | 来自山东
这一套得多少钱
2021-4-20 14:06 回复 收起回复

快速回复

您需要登录后才可以回帖 登录

中电声学 VIP达人组
  • 21主题
  • 49帖子
  • 253积分
当贝投影
5快速回复